Привезем вам товар по договоренности
- Модель:9576
- 6
- Вес:290 кг
- Мощность печи:8 - 16 кВт
- Производитель:M-Design (Бельгия)
- Показать все характеристики
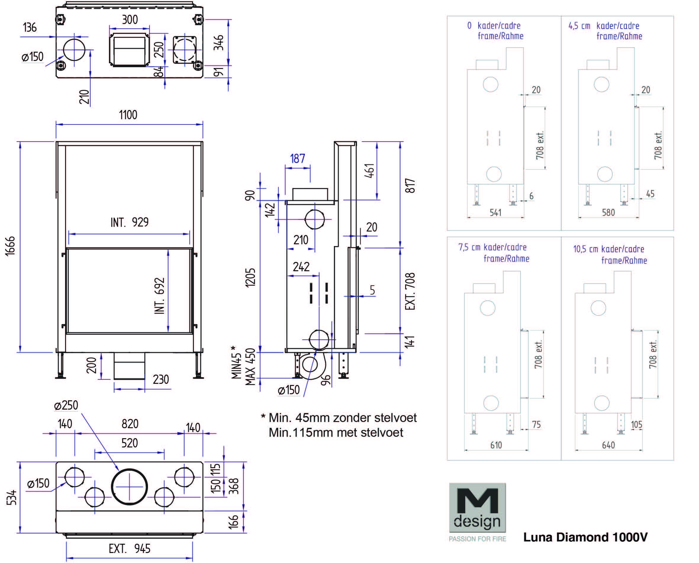
Каминная топка M-Design Luna 1000 V Diamond Plus
M-Design Luna 1000 V Diamond Plus — это бескомпромиссное решение для масштабных современных проектов. Эта вертикальная дровяная топка обладает рекордной площадью остекления, позволяя интегрировать мощь открытого огня в архитектуру дома. В версии Plus камин оснащен интеллектуальным процессором, который берет на себя полное управление процессом горения и механикой дверцы.

Преимущества модели 1000 V Diamond Plus:
Гигантский формат: Ширина фасада 1000 мм в сочетании с вертикальной ориентацией создает беспрецедентный обзор пламени.
Интеллект Plus: Система автоматически адаптирует подачу кислорода под качество дров и тягу в дымоходе, обеспечивая стабильное и красивое горение.
Полный комфорт: Электрический привод стекла позволяет открывать и закрывать камин одним нажатием кнопки на пульте или в мобильном приложении.
Чистое стекло: Усовершенствованная аэродинамика внутри камеры Diamond создает мощную воздушную завесу, оставляя панорамное стекло прозрачным даже при длительной топке.
Эко-эффективность: Несмотря на огромный размер, топка обладает высочайшим КПД (более 80%), что минимизирует выбросы и расход топлива.

Топка 1000 V — это тяжелое и габаритное оборудование, требующее тщательного планирования:
Фундамент: Учитывая вес в 360 кг + вес облицовки, необходимо усиленное основание.
Дымоход: Для стабильной работы такой широкой топки требуется дымоход диаметром 300 мм.
Электрика: Требуется точка питания 220V для работы автоматического привода и контроллера горения.


| Вес | 290 кг |
| Виды твердого топлива | Дрова/Брикеты |
| Водяной контур | Нет |
| Вторичный дожиг | Да |
| Гарантийный срок | 5 лет |
| Глубина | 534 мм |
| Наличие шибера | Нет |
| Подключение к дымоходу | Верхнее |
| Подъем стекла вверх | да |
| Система очистки стекла | Да |
| Тип остекления | Прямое |
| Ширина | 1100 мм |
| Высота | 1666 мм |
| Материал топки | Сталь |
| Мощность печи | 8 - 16 кВт |
| Производитель | M-Design (Бельгия) |
| Вид управления | Приложение, Swipe, планшет, ручное |
| Диаметр подключения дымохода | 250 мм |
| Размер стекла | 692 x 929 мм |
Пока не было вопросов.
Теги: каминная топка, стальная, M-Design






