Привезем вам товар по договоренности
- Модель:9576
- 6
- Вес:295 кг
- Мощность печи:7 - 16 кВт
- Производитель:M-Design (Бельгия)
- Показать все характеристики
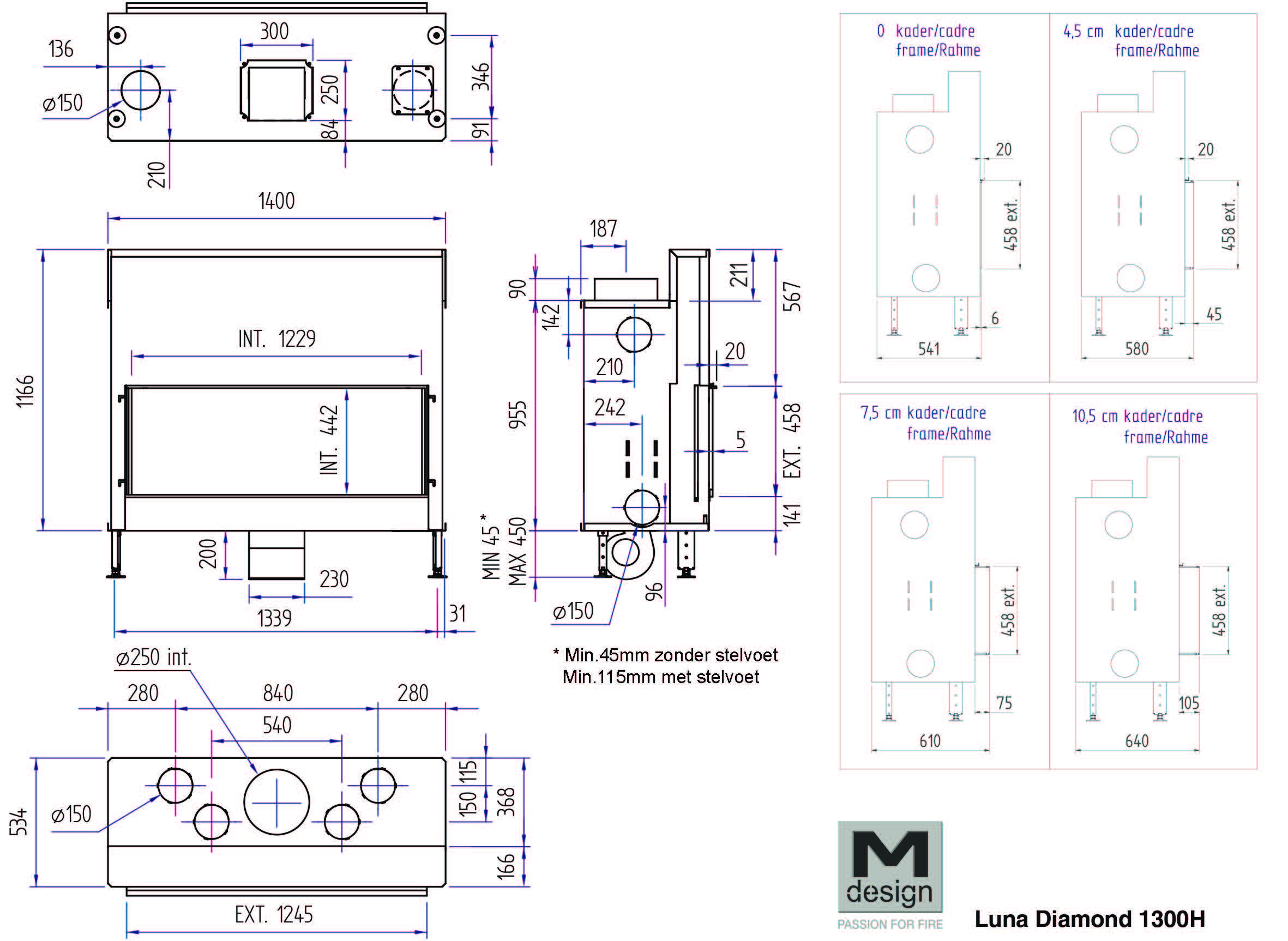
Каминная топка Luna 1300 H Diamond (Plus) : Мощный и стильный очаг для интеграции в интерьер
LUNA DIAMOND (+) Wood 1300 H — это встраиваемый горизонтальный дровяной камин с передней подъемной дверцей, предназначенный для интеграции в каминный портал или специальную нишу. Его лаконичный дизайн из черного металла и керамического стекла позволяет создать бесшовную и современную отопительную систему. Модель предлагает полную индивидуальную настройку за счет выбора декоративных рамок для идеального сочетания с отделкой интерьера.

Ключевые преимущества и особенности:
Встраиваемая конструкция: Предназначен для монтажа в готовый портал или нишу. Глубина встраивания составляет 534 мм, а чистые габариты 442 x 1229 мм обеспечивают универсальность при установке.
Мощный и эффективный обогрев: Диапазон мощности 7–16 кВт при КПД 83% и номинальной мощности 16.2 кВт для отопления больших площадей.
Индивидуальный дизайн: Возможность выбора из различных декоративных рамок для кастомизации лицевой панели.
Высокий класс энергоэффективности: Соответствует стандарту Eco-Design с классом A+.
Умное управление: Контроль через приложение на смартфоне/планшете, сенсорный элемент Swipe или вручную.
Премиум-опции (версия Plus): Автоматическая подъемная дверца, встроенная подсветка топки и ручная искрогасительная сетка для удобства и безопасности.


Каминная топка Luna 1300 H Diamond (+) — это универсальное и стильное решение для создания современной системы отопления. Его конструкция позволяет безупречно вписать очаг в интерьер, а передовые технологии гарантируют эффективный обогрев и максимальное удобство.
Готовы интегрировать камин в свой интерьер? LUNA DIAMOND (+) Wood 1300 H доступен для заказа. Для консультации по установке и расчета стоимости — свяжитесь с нами.


| Вес | 295 кг |
| Виды твердого топлива | Дрова/Брикеты |
| Водяной контур | Нет |
| Вторичный дожиг | Да |
| Гарантийный срок | 5 лет |
| Глубина | 534 мм |
| Наличие шибера | Нет |
| Подключение к дымоходу | Верхнее |
| Подъем стекла вверх | да |
| Система очистки стекла | Да |
| Тип остекления | Прямое |
| Ширина | 1400 мм |
| Высота | 1166 мм |
| Материал топки | Сталь |
| Мощность печи | 7 - 16 кВт |
| Производитель | M-Design (Бельгия) |
| Вид управления | Приложение, Swipe, планшет, ручное |
| Диаметр подключения дымохода | 250 мм |
| Размер стекла | 442 x 1229 мм |
Пока не было вопросов.
Теги: каминная топка, стальная, M-Design






