3 618 BYN
Возможна доставка товара

Привезем вам товар по договоренности

Различные способы оплаты

Наличный и безналичный расчет по картам или переводом

AVANGARD ЗК 25 (М) Pro - новый концепт чугунной теплонакопительной банной печи с прямым нагревом заряда. Корпус модульный, сборка происходит снизу вверх, модули соединяются по пазогребневой системе. Масса пароиспарителя в печи 51 кг, и он нагревается прямым контактом с пламенем. У пароиспарителя 2 поверхности с увеличенной рабочей площадью – снизу идёт нагрев огнём, а сверху поддаётся вода для пара. У печи уникальная, массивная каменка с теплонакопительными воронками, для получения легкого пара.

Под каменкой на 3-х упорах установлен рассекатель пламени, он разделяет пламя на 3 потока и направляет сначала на боковые части корпуса для интенсивного нагрева стенок и конвекционного нагрева воздуха в парной. Для этого на наружных поверхностях расположены конвекционные рёбра. Дальше пламя проходит через выступы к выходу в дымоход, нагревая каменку. Каменка позволяет устанавливать различные стартовые модули вместе с шиберным блоком.


В комплект входит:

  • печь банная AVANGARD ЗК 25 (М) Pro

  • стартовый патрубок 115

  • крышка каменки

  • 2 паровые пушки

  • зольный ящик (конструкционная сталь)

  • герметик до 1500С - 1 шт.

  • гарантийный паспорт (руководство по эксплуатации)




Печь полностью изготовлена из чугуна

При производстве печи мы используем несколько видов жаропрочного чугуна, в том числе с содержанием хрома до 5%. Состав для каждой детали подобран с учетом термической нагруженности элементов печи. Благодаря этому печь Авангард обладает высокой прочностью и надежностью.


Панорамная дверь со стеклом ROBAX

Панорамная дверца с нижним и верхним обдувом стекла позволяет не только наблюдать за процессом горения через чистое керамическое стекло, которое не боится перепадов температур и царапин, но и очень тонко регулировать интенсивность горения с помощью 2-х регулируемых подач воздуха.






Закрытая каменка = русская баня

Полностью чугунная закрытая каменка печи Авангард - является основным парообразователем. Она раскаляется до 900 градусов и при попадании на неё воды способна бесконечно давать большой объем мелкодисперсного легкого пара. За счет толщины стенок в 60 мм обладает повышенной теплоёмкостью и непревзойденной надежностью. Закрытая каменка печи Аванград снабжена 2 воронками с подачей воды на разные уровни, а также клапаном выхода пара на дверке. Теперь не нужно открывать дверцу чтобы получить новую порцию мелкодисперсного пара.


Рассекатель пламени с 3-мя потоками огня

Под каменкой на 4-х упорах установлен рассекатель пламени, он разделяет пламя на 3 потока и направляет сначала на боковые части корпуса для интенсивного нагрева стенок и конвекционного нагрева воздуха в парной. Для этого на наружных поверхностях расположены конвекционные рёбра. Дальше пламя проходит через выступы к выходу в дымоход, нагревая каменку.






Уникальная каменка с воронками

Основным парообразователем в печи Авангард является каменка прямого нагрева. С нижней стороны выполнены полые выступы, которые со всех сторон охватываются пламенем, а с верхней стороны они образуют воронки. Попадая в воронки – вода оказывается в самом раскаленном месте заряда образуя легкий мелкодисперсный пар уже через 30 мин после растопки.

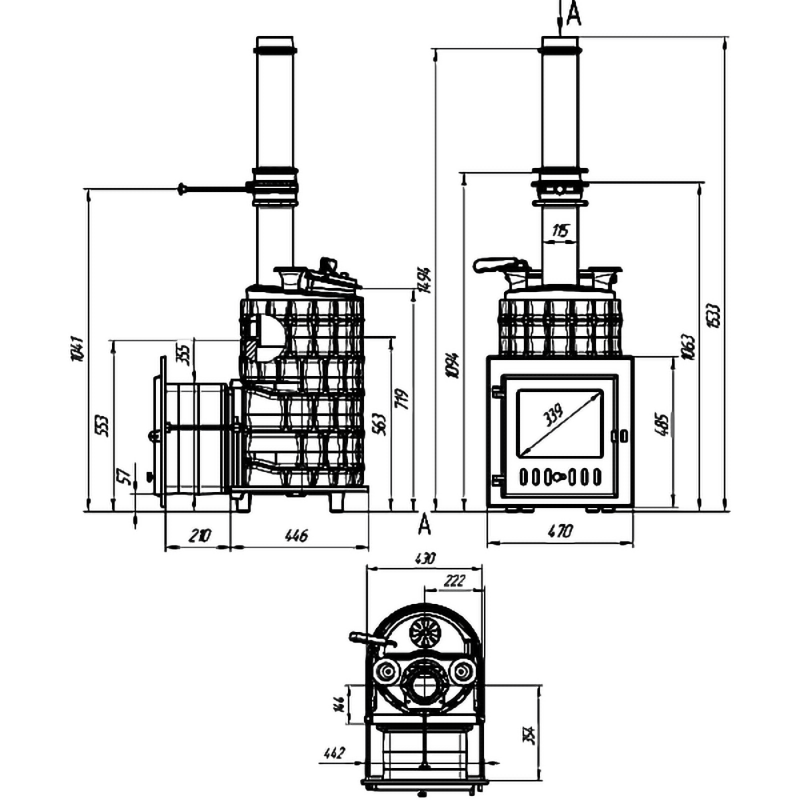
Вес 226 кг
Вынос портала 227
Длина дров 38 см
Материал Чугун
Объем парной 16-24 м3
Режим парной Русская баня
Диаметр подключения дымохода 115 мм
Вид топлива Дрова

Пока не было вопросов.

Рекомендуемые товары

Вы смотрели

Каминная топка Rocal ARc 100 DC

Производитель:Rocal
Модель:12351
12 990 BYN
Новинка

Печь Авангард ЗК 25 (М) Pro Ураган в сетке Тюльпан

Производитель:ТехноЛит
Модель:12425
3 979 BYN
Новинка

Печь Авангард ЗК 35 (П2) Pro Ураган в круглой сетке

Производитель:ТехноЛит
Модель:12428
5 263 BYN
Новинка

Комплект Авангард ЗК 25 (П2) Pro Оптима 725/40 Змеевик

Производитель:ТехноЛит
Модель:12409
7 634 BYN
Новинка
Новинка

Комплект Авангард ЗК 25 (П2) Pro Классика 790/40 Змеевик

Производитель:ТехноЛит
Модель:12416
8 493 BYN
Новинка

Комплект Авангард ЗК 25 (П2) Pro Классика 790/40 Пироксенит

Производитель:ТехноЛит
Модель:12415
8 105 BYN

Теги: печь для бани, чугунная, дровяная, Авангард

Похожие товары

Печь ИзиСтим «ДОМНА 80» К

Производитель:ИзиСтим
Модель:10414
38 331 BYN

Печь ИзиСтим Ялта 100 К

Производитель:ИзиСтим
Модель:10413
48 488 BYN

Печь ИзиСтим Ялта 80 К

Производитель:ИзиСтим
Модель:10412
38 623 BYN

Печь ИзиСтим Ялта 60 К

Производитель:ИзиСтим
Модель:10411
23 450 BYN

Печь ИзиСтим Ялта 40 К В КАМНЕ

Производитель:ИзиСтим
Модель:10410
13 669 BYN

Печь ИзиСтим Ялта 15 К В КАМНЕ

Производитель:ИзиСтим
Модель:10409
7 064 BYN

Печь ИзиСтим Ялта 15 К

Производитель:ИзиСтим
Модель:10408
5 392 BYN

Печь ИзиСтим «ГЕЛЕНДЖИК» М2 В ТРЕХСТОРОННЕМ КОЖУХЕ С БОКОВЫМ ПОДКЛЮЧЕНИЕМ

Производитель:ИзиСтим
Модель:10407
16 093 BYN

Товары этого производителя

Новинка

Печь Авангард ЗК 40 (П2) Pro Ураган Тюльпан

Производитель:ТехноЛит
Модель:12431
6 091 BYN
Новинка

Печь Авангард ЗК 40 (П2) Pro Ураган в сетке

Производитель:ТехноЛит
Модель:12430
6 091 BYN
Новинка

Печь Авангард ЗК 35 (П2) Pro Ураган в сетке Тюльпан

Производитель:ТехноЛит
Модель:12429
5 411 BYN
Новинка

Печь Авангард ЗК 35 (П2) Pro Ураган в круглой сетке

Производитель:ТехноЛит
Модель:12428
5 263 BYN
Новинка

Печь Авангард ЗК 25 (П2) Pro Ураган в сетке Тюльпан

Производитель:ТехноЛит
Модель:12427
4 389 BYN
Новинка

Печь Авангард ЗК 25 (П2) Pro Ураган в круглой сетке

Производитель:ТехноЛит
Модель:12426
4 309 BYN
Новинка

Печь Авангард ЗК 25 (М) Pro Ураган в сетке Тюльпан

Производитель:ТехноЛит
Модель:12425
3 979 BYN
Новинка

Печь Авангард ЗК 25 (М) Pro Ураган в круглой сетке

Производитель:ТехноЛит
Модель:12424
3 884 BYN